À vendre – Grange à rénover avec fort potentiel à 15 minutes de Genève

France, Genève | Genève
Description
Référence:
CI- VEIGY-NEW
Pièces:
4
Nb de salles de bain: 1
Nb de chambres:
3
Surfaces:
170 m2
Surface utile:
170 m2
Ameublement:
Non meublé
Surface du terrain:
252 m2
Vue:
Champêtre
Style:
Rustique
État:
A rénover
Jardin:
252 m2
Parking:
Inclus
Description
À vendre – Grange à rénover avec fort potentiel à 15 minutes de Genève

Située à seulement 15 minutes du centre de Genève, dans le secteur de Végie Foncennex, au cœur du village et à proximité immédiate des commodités, cette superbe grange datant des années 1900 représente une opportunité rare sur le marché.
Développant environ 170 m2 habitables, ce bien de caractère s’organise sur 1 étage supérieur et 1 comble, offrant de généreux volumes et un fort potentiel d’aménagement. Son authenticité, ses structures d’origine et son cachet en font une base idéale pour un projet de rénovation sur mesure.

Répartie intelligemment, la bâtisse permet d’imaginer une habitation chaleureuse et unique, adaptée aussi bien à une famille qu’à une résidence secondaire pleine de charme.

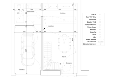
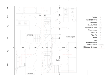
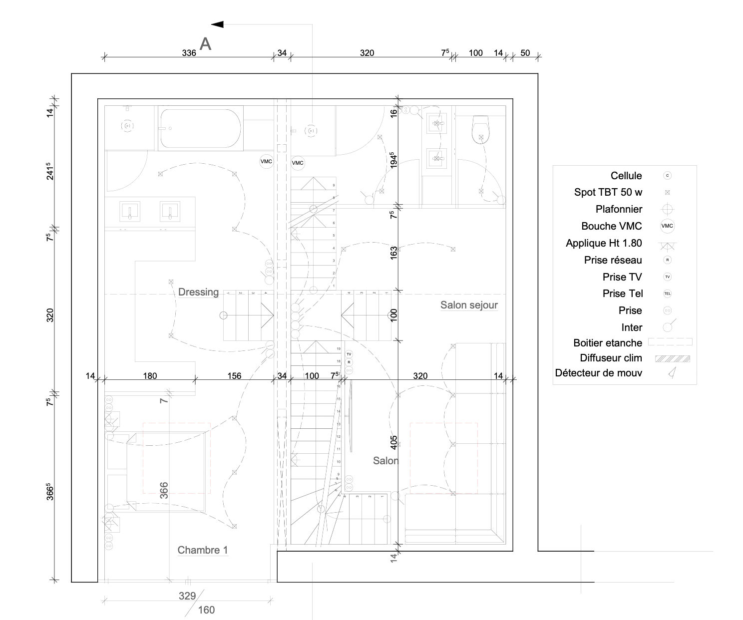
Des plans ainsi que des projections 3D après travaux sont disponibles dans les photos afin de vous permettre de vous projeter pleinement dans le potentiel du projet.

Le bien est vendu en l’état, laissant une totale liberté d’aménagement et de conception, à définir avec votre architecte.
3D en exemple.

Caractéristiques principales :
  • Surface habitable nette : 170 m2
  • Surface terrain : 252 m2
  • Organisation : 1 étage supérieur + 1 comble
  • Garage intérieur actuel avec 1 place de parc privative
Ce bien d’exception allie le charme de l’ancien à un environnement paisible et recherché. Une opportunité rare pour les amateurs de biens atypiques et de projets authentiques.

Commodités et environnement à proximité (moins de 5 à 15 minutes) : 
Commerces de proximité : épiceries, boulangeries, pharmacies et petits commerces dans les villages voisins
Grandes surfaces : centres commerciaux accessibles rapidement en voiture (Coppet, Versoix, Nyon ou périphérie de Genève)
Écoles : établissements scolaires publics (cycle primaire et secondaire) dans les communes environnantes
Transports : lignes de bus régionales et accès rapide aux axes routiers menant à Genève
Gare : gares CFF à proximité (Coppet / Versoix selon le secteur exact) permettant de rejoindre Genève facilement
Santé : médecins, cabinets médicaux, dentistes et pharmacies dans un rayon proche
Restauration : restaurants de village et établissements dans les communes voisines
Loisirs et nature : chemins de promenade, campagne genevoise, vignobles et accès rapide au lac Léman
Activités sportives : clubs de sport, tennis, centres équestres et infrastructures communales à proximité

Pour toute demande de visite :
Contactez Claire VIZIT au +41 79 260 00 04.
Contact@claire-immobilier.ch
Adresse
712 route du chablais
1211 Genève
Sur la carte
€ 449'000.-
Claire Vizit
Agent immobilier
Claire Vizit
Contactez le courtier